Genel bakış
- Güncellenme tarihi:
- Ağustos 3, 2022
- 1 Yatak Odası
- 1 Banyo
- 40.00 m2
- İnşaa / Renovasyon Yılı: 2022
Genel açıklama
Daire, Selanik şehrinde, son derece merkezi bir konumda ve seçkin bir semtte bulunmaktadır. Denize 240 metre, şehrin en merkezi meydanı olan Aristotelous Meydanına 2,9 km (11 dk.), Selanik Aristoteles Üniversitesine 2 km (6 dk.), Selanik Uluslararası Havalimanına 13,4 km (18 dk.) mesafededir.
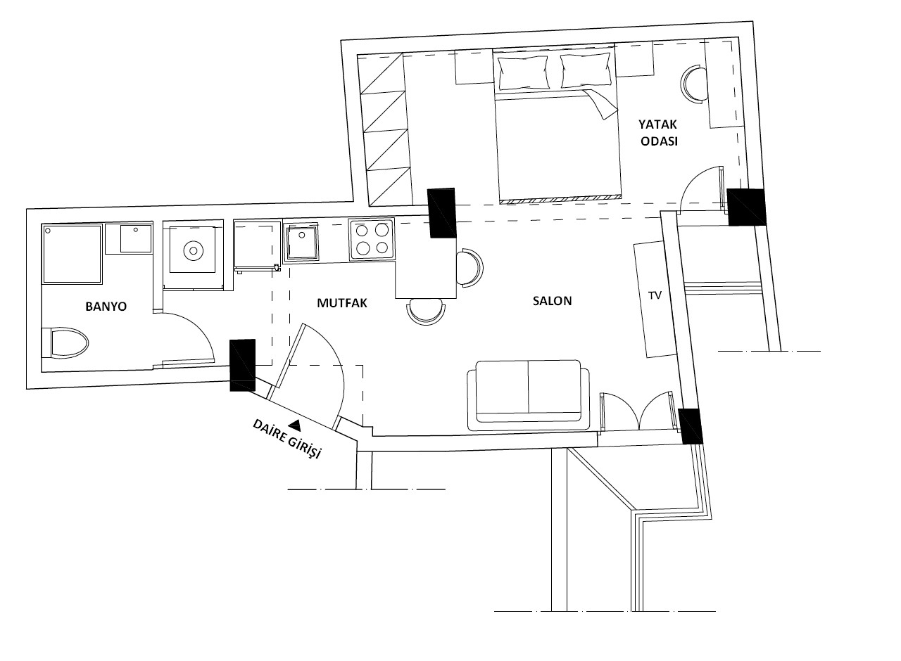
Daire, elektrik, temiz ve pis su tesisatı dâhil olarak tümden yenilenmiştir. 40 m² kapalı alana sahiptir ve Amerikan mutfaklı 1 salon, 1 oda, 1 banyo ve balkon alanlarından oluşmaktadır. Tüm pencereler çift camlıdır ve ayrıca ısınma için doğal gaz, soğutma için ise salon ve odada birer klima mevcuttur.
Daire ful eşyalı olup, aşağıdakiler mevcuttur:
– Buzdolabı
– Ankastre Ocak
– Ankastre Fırın
– Kurutma Özellikli Çamaşır Makinesi
– Klima (3 adet)
– Televizyon (49 inç 4K)
– Görsellerdeki diğer mobilya ve eşyalar
Tüm mobilya ve eşyalar yeni satın alınmış olup, faturalı ve garantilidir.







